iBerkshires     Berkshire Chamber     MCLA     City Statistics    
North Adams Planners OK New Apartments in Eagle Street Block
By Tammy Daniels, iBerkshires Staff
07:05PM / Monday, January 10, 2022
Print | Email  



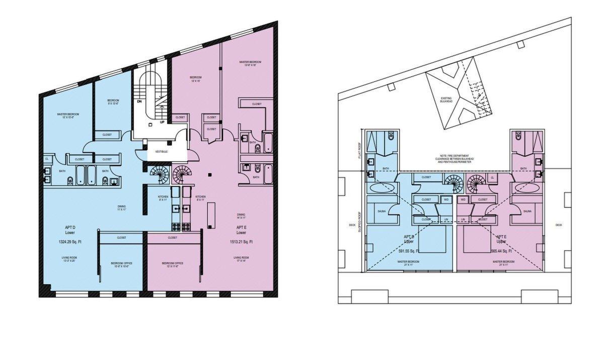
Plans for the top floor apartments include a fifth level for master bedrooms. 
NORTH ADAMS, Mass. — The developer of an Eagle Street property was stymied last month by technical difficulties in trying to make his case. 
 
On Monday night, it took less than 10 minutes for him to get approval to turn the Tower and Porter Block back into an apartment building. 
 
Owner Veselko Buntic and his architect Barry Berg, both of New York, had submitted plans more than a month ago on redeveloping the four-story, 130-year-old building.  
 
Unfortunately, Buntic wasn't able to signal his presence at the virtual December meeting and, believing he was not present, the board postponed the application to the January meeting. 
 
Monday both he and Berg appeared during the Zoom meeting to answer questions. Berg noted that the board had approved for the structure to be a boutique hotel back in 2018.
 
"We had done a proposal to convert the building to hotel use," he said. "Subsequent to that, it was decided that it would be better suited as apartments. So we went back to the original use: apartments on the four existing floors and then propose an addition on the roof. That would be the upper story of two duplex units on the fourth floor. So that's the current proposal."
 
The structure will have three apartments on each of the second and third level. Two will be two-bedroom units and the third will be one-bedroom. The two-bedrooms will be just over 1,000 square feet and the one-bedroom 761 square feet. The larger units will both have two full-bathrooms. 
 
There will be two fourth-floor apartments extended upward with a master suite each on a fifth level. These larger apartments are proposed to be 1,300 and 1,500 square feet with masters of nearly 600 square feet for the smaller apartment and 565 square feet for the larger. 
 
The building had originally been an apartment house with retail on the bottom level on the west, or Eagle Street, side. The east side, on North Church Street, will access the apartments. 
 
Planner Robert Burdick asked about parking for the building. Chairman Brian Miksic noted that developments in the downtown center are not required to have parking spaces but that the board could put it in as a condition. 
 
Buntic said his conversations with the past two mayors had included the use of parking in the Center Street lot either by "donation" or parking permit. He said he planned to bring this up with the new mayor, Jennifer Macksey.
 
"Whatever needs to be done, I will do that to secure parking so people who come there don't have to go to the office and acquire their own parking," he said. 
 
Planner Paul Senecal questioned the drawings that only showed one egress for each unit into a central hallway when two were required. Berg said they were aware and would be working on it with the building inspector. 
 
Miksic asked what they were doing with the storefronts on the Eagle Street said and Berg said they would be fitted for two stores. 
 
Buntic has said he's put about $120,000-$140,000 into it so far for stabilization, demolition and asbestos removal since purchasing it in 2016. Much of the interior has been removed. 
 
Planner Lynette Bond applauded the proposal, saying, "I think this is fantastic to see more housing for the city. ... We know in North Adams that we're facing a housing shortage so I applaud you. I think this is a great proposal."
 
In other business, Miksic asked that Planner Kyle Hanlon and Senecal bring nominations for chair and vice chair to the next meeting. Miksic, vice chairman, is currently acting as chair after the departure of longtime Chairman Michael Leary last month. 
 
Miksic welcomed the board's newest members Jesee Egan Poirier and Rye Howard. 
More Featured Stories
NorthAdams.com is owned and operated by: Boxcar Media 102 Main Sreet, North Adams, MA 01247 -- T. 413-663-3384
© 2011 Boxcar Media LLC - All rights reserved